- Úvod
- >>
- Príslušenstvo pre montáž
- >>
- Závesný materiál
- >>
- Lišty a príslušenstvo
- >>
- Montážný uholník
- >>
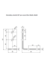
- Montážný uholník pre nosnú lištu 38x40, 40x60 - 107x85/40 - 90° (4x otvor)
Montážný uholník pre nosnú lištu 38x40, 40x60 - 107x85/40 - 90° (4x otvor)
Montážný uholník pre nosnú lištu 38x40, 40x60 - 107x85/40 - 90° (4x otvor)
Funkcia
Montážný uholník pre nosné lišty s označením 38x40 a 40x60, dĺžka strán 107 + 85 mm, šírka 40 mm, s uhlom 90°, poskytuje pevné a spoľahlivé upevnenie nosných líšt a konzol, pod uhlom. Na spojenie uholníka s nosnou lištou alebo konzolou využijeme skrutku, podložku a jazdec. Vysoká pevnosť, jednoduchá inštalácia, ideálny pre stavebné a montážne aplikácie.
Vlastnosti
Uholník je vyrobený z pozinkovaného plechu, ktorý zaručuje vysokú pevnosť a odolnosť voči korózii. Štyri otvory umožňujú jednoduchú inštaláciu a pevné prichytenie nosných líšt (montážnych profilov, nosníkov) a ďalších komponentov. Voliteľné rozmery poskytujú dostatočnú podporu pre základné veľkosti nosných líšt. Hrúbka uholníka zaisťuje potrebnú pevnosť pri zachovaní nízkej hmotnosti, čo uľahčuje manipuláciu a montáž. Tento produkt je ideálny pre profesionálne aj domáce použitie, kde je potrebné zabezpečiť spoľahlivé a presné uchytenie konštrukčných prvkov.
Parametre
| Hmotnosť | 0,1 kg |
|---|
